电话

肾内科腹透室改造比价采购文件 (SBBJ2020L090)

发布时间:2020-12-07 本文出处: 返回上一级

一、项目:肾内科腹透室改造,预算2.1万。

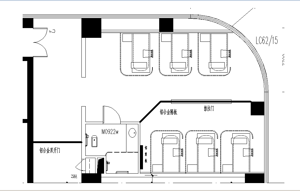
二、工程内容及要求:

1、建设地点:成都市金牛区人民医院十九楼肾内科

2、建设内容:肾内科腹透室改造,工期:15天

2.1 肾内科15号病房内铝合金隔断,高2.8m×长6.6m×宽12mm

2.2 15号病房外通道安装玻璃双开地弹门,高2.55m×长2.5m×宽12mm。

2.3 地弹门以内墙面所有区域粉刷防护水漆。

3、工程量清单如下:

序号

工程项目

数量

单位

施工工艺及材料说明

1

铝合金隔断

18.5

m2

1.0厚铝型材,12mm钢化玻璃;

6.6×2.8m;

隔断至顶,保证腹透室全封闭

2

铝合金玻璃双开地弹门

6.5

m2

1.0厚铝型材,12mm钢化玻璃;

2.55×2.5m

3

刷环保防水漆

145

m2

刮灰、打砂、防尘处理;修复原墙壁

4

铝塑板

1

1.2m*0.8m

5

海康门禁

1

海康8700系统,含控制器4门(海康威视DS-K2604)、双门磁力锁、读卡器(海康威视DS-K1102MK)、开关按钮、电源线、网线,联入医院门禁系统平台授权

合计

 含税、安装、运输等

4、改造布局图:

图片1.png 

三、商务要求:

1、具有建筑类资证。

2、若需实地考察,费用自理。

3、供应商提供的产品及材料必须是原厂生产的、全新的、未使用过的正品,并完全符合国家质量标准。

4、供应商施工作业必需符合国家及行业相关规范,施工中的一切风险包括安全责任事故由供应商承担。

5、质保期:至少一年。

6、付款方式:验收合格签订验收合格报告后十五个工作日内付合同总金额的90%,质保期满后无质量问题十五个工作日内支付剩余10%。付款前乙方需向甲方提供全额合法含税发票。

现特邀潜在供应商参与比价,报价包括设计、材料、辅料、人工、运输、保险费用、验收合格交付使用之前所有其他有关各项的含税费用。

若你公司有意参与本次比价活动,并完全同意我院上述商务要求,请将比价资料一式三份(正本一份、副本两份)加盖公章密封后于2020年12月8日至12月10日工作日(上午9:00-11:30,下午2:30-5:00)交到我院招标采购办公室(资料概不退回,请见谅),并对所提供证件及材料的真实性、合法性、有效性承担法律责任。

四、资料排列顺序

1.  报价表

序号

项目名称

工程内容

完成时限

质保期

总价(万元)







2.  商务要求应答承诺

3.  投标公司证照及简介

4.  参加公司法人对代表人的委托书(法人参加的不需要)及法人身份证复印

件、 被委托人的身份证复印件(加盖公司公章)。

5.  服务响应表(偏离说明:响应、正偏、负偏)。

序号

比价文件要求

工程要求响应

偏离说明





6、其他相关资料

五、成交原则:综合比较价格、商务要求、完成时限、质保期等因素确定供应

商。

六、评议结果通知时间:另行通知。

七、评议地点:成都市金牛区人民医院。

 

联系人:刘老师   姚老师

电  话:028-62606914

 

成都市金牛区人民医院招标采购办公室

                                  二○二○年十二月七日


热选新闻

成都市金牛区人民医院新进药品公示

惠民义诊暖人心!金牛区人民医院把健康与“医”靠送到群众身边

为深入践行“健康中国”战略,切实将优质医疗资源与惠民政策精准送达群众身边,12月10日,由我院联合金牛区医疗保障局共同主办,国家税务总局成都市金牛区税务局、金牛区营门口街道办事处协办的“人人参保有‘医’靠,家家健康享平安”大型主题义诊活动,在龙湖西宸天街广场圆满举行。本次活动以“零距离”服务模式,成功搭建起政府部门、医疗机构与社区居民之间的“健康连心桥”,让便民服务落地生根。

医院简介

医院正面照
医院侧面
门诊大楼
住院部大楼